Kraków, Kraków-Krowodrza, Stańczyka

no.: 14453/3923/OMW

Apartment On rent
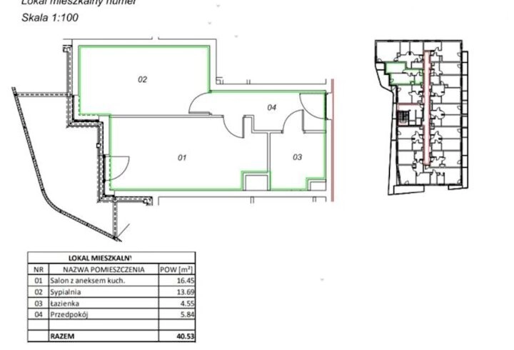
Area 40.53 m2
Rooms 2
Bathrooms 1
Year of construction 2022
Floor 6/14
Intercom Yes
Monitoring Yes
Elevator Yes
Price per m2

A two-room apartment with an area of 40.53 sq m is available for rent on Stańczyka Street, close to the Ofiar Katynia Roundabout in Krakow. The property comprises a living room with a kitchenette, a bedroom, a bathroom, a hallway, and a large balcony.
BUILDING AND LOCATION:
Building: built in 2022 with an elevator and monitoring,
Street: Stańczyka,
Stop: Wesele – 400m,
District: Bronowice,

This modern building is located near Galeria Bronowice. The area is well-connected, with numerous tram and bus lines. Nearby, you’ll find all the necessary services and shops, including the nearby Galeria Bronowice and IKEA shopping centers, as well as entertainment options like tennis courts, gyms, and a park. This apartment is ideal for those who value convenient access to the city center and a high level of comfort. A public transportation stop is located 400 meters from the building.

APARTMENT:
Floor: 6/14,
Area: 40.53 m2,
Room layout:
living room with kitchenette with an area of 16.45 m2 + bedroom with an area of 13.69 m2 + hall with an area of 5.84 m2 + bathroom with an area of 4.55 m2 + balcony with an area of approximately 11 m2,
Equipment:
The apartment consists of a living room with a sofa, a chest of drawers, a dining table, and a balcony. The kitchenette is equipped with custom-made kitchen cabinets, a refrigerator, an electric oven, an induction hob, a hood, and a dishwasher. The bathroom has a shower, a sink with a cabinet, a towel rail radiator, and a washing machine. The bedroom is furnished with a double bed and a wardrobe. A parking space in the underground garage is also available for purchase.

FINANCES:
– PLN 3,100 – rent,
– PLN 700 administrative fees (advance payments for hot and cold water, heating, garbage collection, maintenance of common areas) + electricity according to consumption,
– refundable deposit
– commission for the real estate agency.

COMMENTS:
– ready, fully equipped apartment,
– heating and hot water from the MPEC municipal network,
– good transport connections to every part of the city,
– safe neighborhood, monitored estate,
– occasional rental

AGENT CONTACT:
Maciej Marchewka
+48 537 258 888
mmarchewka@gamp-krakow.pl

Ask about the property