Alwernia, Ignacego Krasickiego

Dom 115m2, Alwernia Stan surowy+ dach

nr: 425/3923/ODS

Dom Na sprzedaż
Rodzaj budynku Wolnostojący
Powierzchnia 115 m2
Pow. działki 7.1 Ar
Liczba pokoi 5
Liczba łazienek 1
Rok budowy 2025
Piętro Parter/1
Cena za m2

Na sprzedaż wolnostojący, parterowy dom jednorodzinny o powierzchni użytkowej 115 m², zlokalizowany w spokojnej i zielonej części Alwerni. Funkcjonalny, parterowy układ zapewnia wygodę codziennego użytkowania oraz łatwy dostęp do wszystkich pomieszczeń bez schodów. Nieruchomość posadowiona na działce o powierzchni ponad 7 arów, idealna dla rodziny szukającej komfortowej przestrzeni z możliwością własnej aranżacji. Budynek w stanie surowym otwartym, z planowanym wykonaniem dachu według preferencji nowego właściciela — do wyboru pokrycie blachą lub dachówką.  

Dach wykonany w cenie domu z wybranych materiałów, możliwość zagospodarowania poddasza. Doskonała propozycja dla osób, które chcą wykończyć dom według własnego gustu i stworzyć przestrzeń idealnie dopasowaną do swoich potrzeb.

Rok budowy: 2025.

LOKALIZACJA:
Miejscowość: Alwernia
Odległości do strategicznych punktów:
Przystanek autobusowy: Alwernia Spalona 
Przedszkole: 2km
Sklep spożywczy: 1km 
Szkoła podstawowa: 2km
Kraków: 30km

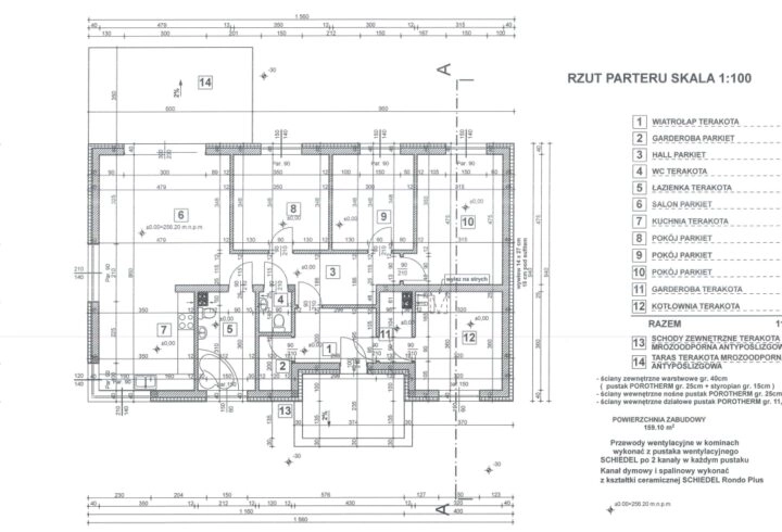
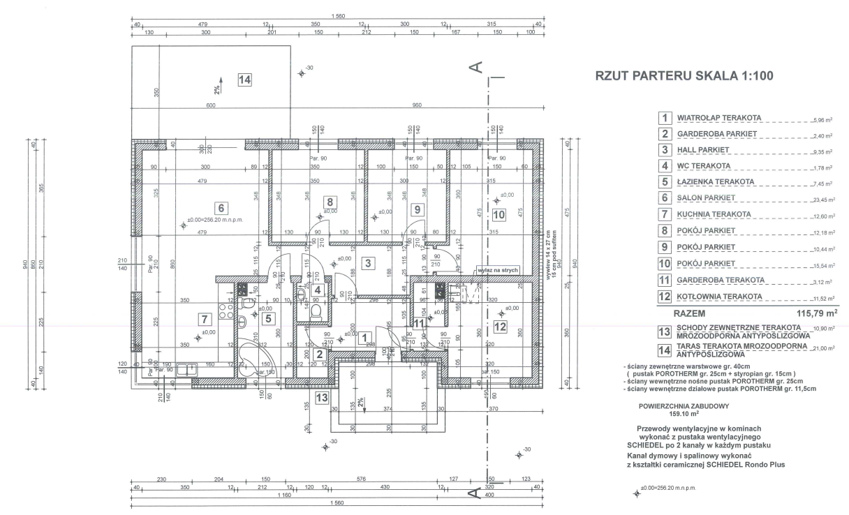
ROZKŁAD POMIESZCZEŃ:
Wiatrołap – 5,96m2,
Garderoba – 2,4m2,
Korytarz – 9,35m2,
Toaleta – 1,78m2,
Salon – 23,45m2,
Kuchnia – 12,60m2,
Sypialnia – 12,18m2,
Sypialnia – 10,44m2,
Sypialnia 15,54m2,
Garderoba 3,12m2,
Kotłownia/gabinet – 11,52m2.
Plan domu załączony w ofercie.

TECHNOLOGIA BUDOWY:

Ściana zewnętrzna:
24cm bloczki z betonu komórkowego SOLBET 
Fundament:
24cm bloczki + hydroizolacja XPS, folia kubełkowa
Dach:
Pokrycie z dachówki ceramicznej lub blachy

DZIAŁKA I OTOCZENIE:
Dom znajduje się na prostokątnej działce 25m x 28mw spokojnej okolicy Alwerni. W sąsiedztwie domu jednorodzinne. Ze względu na wielkość działki istnieje możliwość swobodnego zlokalizowania wiaty parkingowej bądź garażu wolnostojącego.

FINANSE:
– 400 000 PLN – cena domu netto (VAT 8%) w stanie surowym otwartym wraz z dachem
– brak podatku PCC (rynek pierwotny)
– prowizja dla biura nieruchomości.

UWAGI:
– Dom wolnostojący,
– Nowa inwestycja z 2025 roku,
– Możliwość wyboru rodzaju pokrycia dachowego,
– Duża, ustawna działka,
– Taras i ogród,
– Spokojna okolica z dobrym dojazdem do centrum Alwerni,
– Zdjęcie wizualizacji poglądowej domu.

KONTAKT DO AGENTA: 
Maciej Marchewka
+48 537 258 888
mmarchewka@gamp-krakow.pl

Agent nieruchomości

Maciej Marchewka

oferty agenta
pl en

Agent nieruchomości

Maciej Marchewka

zobacz mój profil

Zapytaj o nieruchomość