Kraków, Kraków-Śródmieście, Strzelców

Nowy lokal 402 m2 | Rondo Barei, Prądnik Czerwony

nr: 1066/3923/OLW

Lokal komercyjny Na wynajem
Rodzaj budynku Pawilon
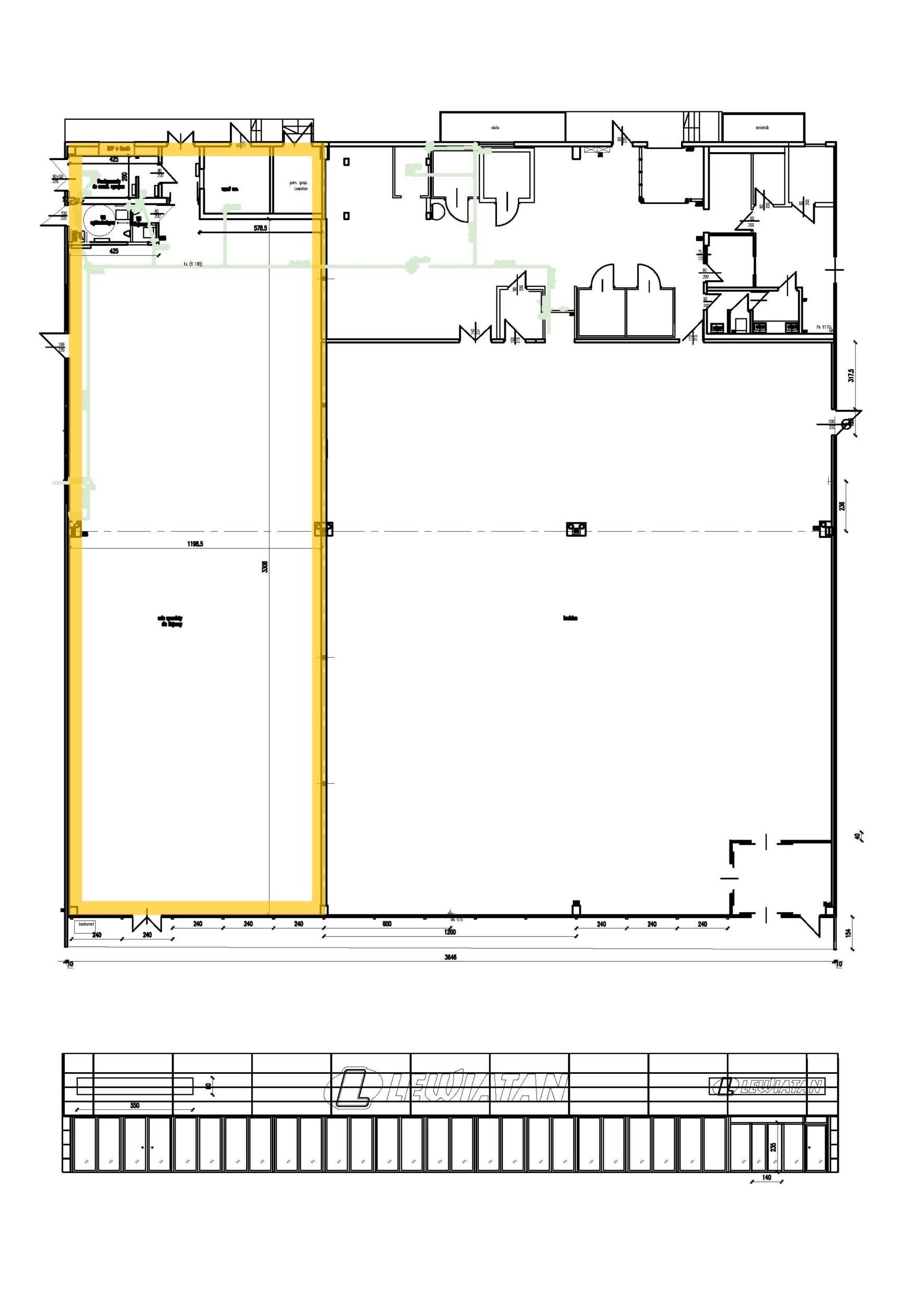
Powierzchnia 402 m2
Rok budowy 2025
Cena za m2

Do wynajęcia od zaraz, lokal o powierzchni 402 m², przy ul. Strzelców 4 w Krakowie. 

– Lokal położony w parterowym, wolnostojącym pawilonie tuż przy samym Rondzie Barei. Rondo aktualnie w przebudowie, powstanie węzęł przesiadkowy (oddanie planowane w bierzącym roku) – nowe tory tramwajowe, które połączą ulicę Meissnera z Mistrzejowicami co zapewni jeszcze większy ciąg pieszy.
– W budynku poza oferowanym lokalem, znajduje się sklep Lewiatan w nowoczesnej odsłonie, który przyciąga klientów z pobiskich terenów mieszkalnych. Do pawionu przylega paczkomat oraz butelkomat.
Pawiolon po generalnej przebudowie w roku 2025. Lokal czeka na pierwszego Najemcę. 

FINANSE:
– Czynsz najmu: 36 180 PLN netto + media (woda, prąd, ogrzewanie, wywóz śmieci),
– wymagana kaucja zwrotna, ustalana indywidualnie pod klienta, 
– prowizja dla biura nieruchomości.

UWAGI:
– Dostępne od zaraz,
402 m2 – powiechnia hali sprzedażowej
witryna na ciąg pieszy, 
– przystosowany pod lokal handlowy, 
– możliwość elastycznej adaptacji przestrzeni pod swoją działaność,
– lokal posiada rampę wyładowczą, podjazd od tyłu budynku,
– ogrzewanie oraz ciepła woda z sieci miejskiej,
– budynek monitorowany,
– brak przynależnych miejsc parkingowych (parking miejski).

KONTAKT DO AGENTA:
Mateusz Sarapata
+48 884 979 766 – I’m on WhatsApp!
msarapata@gamp-krakow.pl

Agent nieruchomości

Mateusz Sarapata

oferty agenta
pl en

Agent nieruchomości

Mateusz Sarapata

zobacz mój profil

Zapytaj o nieruchomość