Kraków, Kraków-Podgórze, Koszykarska 20b

Płaszów, nowe 2 pok., ogród 38 m2, I kw.2027!

nr: 5132/3923/OMS

Mieszkanie Na sprzedaż
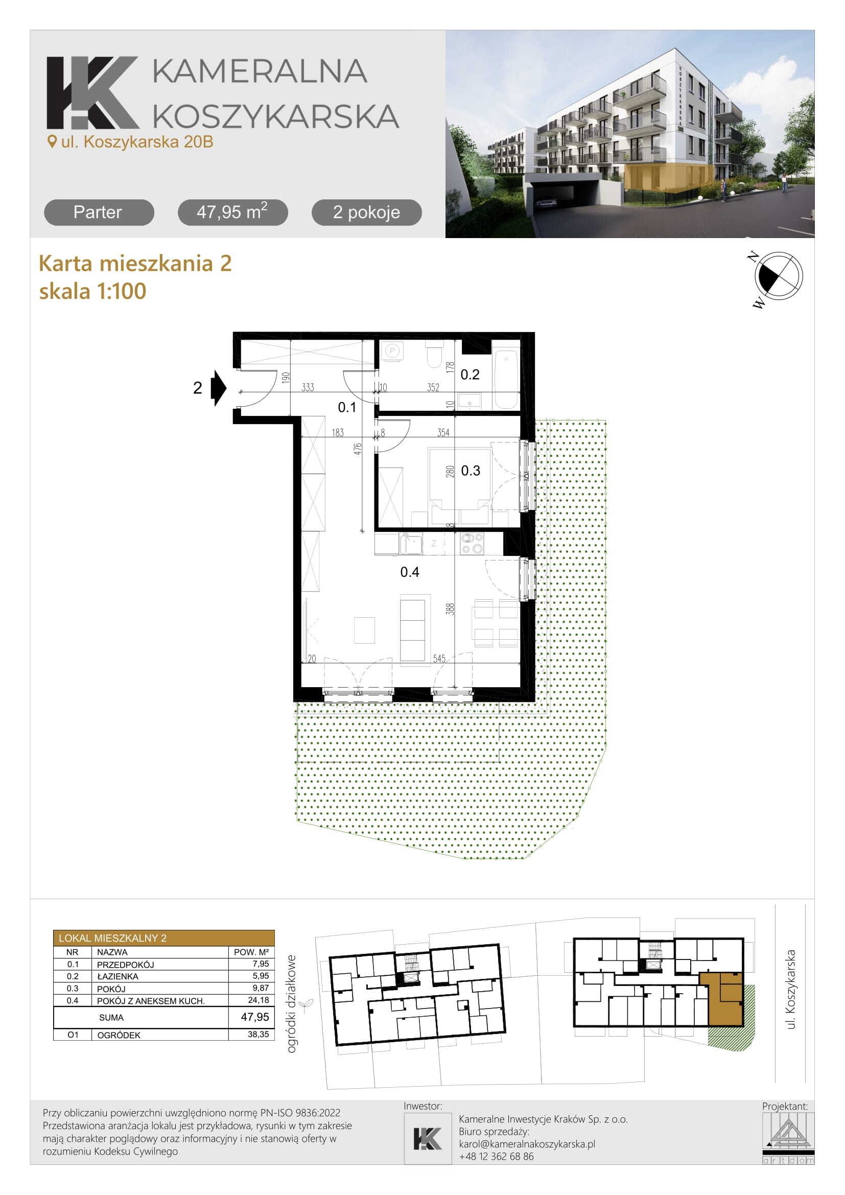
Powierzchnia 47.95 m2
Liczba pokoi 2
Liczba łazienek 1
Rok budowy 2026
Piętro Parter/3
Garaż/miejsce parkingowe Tak
Domofon Tak
Winda Tak
Cena za m2

 Na sprzedaż przestronne dwupokojowe mieszkanie o powierzchni 47,95 m2 z ogródkiem o powierzchni 38 m2 w inwestycji „Kameralna Koszykarska” na Płaszowie z terminem oddania na I kw. 2027 roku.

Jesteśmy biurem sprzedaży dewelopera. Kupujący nie płaci prowizji.
Więcej informacji na: www.kameralnakoszykarska.pl

BUDYNEK I LOKALIZACJA:
Budynek: nowoczesne, kameralna osiedle mieszkalne dwóch budynków z parkingiem podziemnym,  miejscem do kąpieli zwierząt oraz miejscem serwisu rowerów otoczony zielenią, położony w spokojnej i rekreacyjnej dzielnicy,
Ulica: Koszykarska 20B,
Przystanek: Saska, Stoczniowców,
W pobliżu: Zalew Bagry, stacja benzynowa, punkty usługowe, sklepy, Park Rzeczny Ogród Płaszów, plac zabaw, przedszkole, szkoła podstawowa,
Dzielnica: Płaszów

FILM PREZENTUJĄCY INWESTYCJĘ:
https://www.youtube.com/watch?v=vjH-HhvoVb8

MIESZKANIE:
Ogłoszenie dotyczy mieszkania M2 w stanie deweloperskim.
Piętro: 0/3,
Powierzchnia: 47,95 m2 + ogród 38 m2.
Rozkład pomieszczeń: salon z aneksem + osobny pokój + łazienka + przedpokój (widoczne na rzucie).
Dodatkową powierzchnię stanowi ogród o powierzchni 38 m2.

FINANSE:
– CENA MIESZKANIA: 767 200 PLN (16000 PLN/m2),  
– cena miejsca postojowego w garażu podziemnym: 60 000 PLN,
– cena zewnętrznego miejsca postojowego: 25 000 PLN,
– komórki lokatorskie w cenie 3000 PLN/m2.

UWAGI:
– termin oddania: I kwartał 2027,
– winda,
– tuż przy parku,
– ogrzewanie i ciepła woda z ciepłowni miejskiej,
– miejsce do kąpieli zwierząt,
– miejsce serwisu rowerów,
– bardzo dobra komunikacja do centrum Krakowa.

W tej inwestycji posiadamy inne mieszkania o różnych metrażach- prosimy o kontakt w celu sprawdzenia dostępności mieszkań.

BIURO SPRZEDAŻY:
Karol Piwoński
+48 12 362 68 86
karol@kameralnakoszykarska.pl

Zapytaj o nieruchomość